Přítomní: 0 čtenářů 0 mobilní
Kam s Vojtěchem Kašparem za památkami donedávna ukrytými v zemi
Rituální lázeň v Pinkasově synagoze na pražském Josefově
Archeologické terény, zaniklá zástavba, pozůstatky přízemí či zasypaných sklepů původní zástavby v prostoru Židovského Města jsou dnes pohřbeny pod mohutnými novověkými navážkami o mocnosti dvou až pěti metrů. Ty pocházejí z drastické asanace této části města na přelomu 19. a 20. století, kdy došlo k postupné demolici desítek objektů, výstavných palácových staveb i tří synagog. Na takto uvolněné ploše vznikly nové městské bloky činžovních domů a široké nově trasované ulice.
Počátky zdejšího osídlení jsou na základě výpovědi archeologických pramenů kladeny do průběhu 2. poloviny 11. století (první zmínka o pražských Židech pochází z roku 1096). K intenzifikaci sídelních aktivit v tomto prostoru dochází v průběhu 12. století a židovské osady vyrůstají v okolí dvou významných staveb Staré a Staronové synagogy s přilehlým židovským hřbitovem. O charakteru zdejšího osídlení svědčí osteologické nálezy kuchyňského odpadu, v němž z náboženských důvodů jednoznačně převládají kosti hovězí, doprovázené v menší míře kostmi drůbežími a skopovými. Židovské Město bylo po roce 1230 zakomponováno do nově budovaných kamenných hradeb Starého Města a již na konci 13. století v písemných pramenech nalézáme označení „vicus Judeorum“ či později „platea Judeorum“.
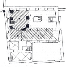
Kompletní asanaci Josefova uniklo pouze několik staveb, mezi nimi i Pinkasova synagoga, v níž byla archeologickým výzkumem realizovaným při výkopech odvodňovacích rýh v roce 1968 odkryta zcela unikátní kamenná rituální lázeň - mikve. Vlastní synagoga byla postavena na pozůstatcích starší historické pozdně středověké měšťanské zástavby a byla dokončena v roce 1535. Výzkum prokázal skutečnost, že severní obvodová zeď synagogy byla přímo založena na starší pozdně středověkou stavbu, k níž přiléhala hluboká konstrukce roubené studny. Objekt musel zaniknout ještě před založením zdejšího hřbitova, tedy již v první polovině 15. století. Největším překvapením ovšem byl nález již zmiňované rituální lázně ve výkopu při východní obvodové zdi synagogy. Také zde byla výkopy pro odvodnění obvodových stěn odkryta zaniklá středověká stavba, která prošla stavebně‑historickým vývojem. V jeho rámci byla posléze přepažena příčkou na dvě sousední místnosti, které byly propojeny dveřmi. Obě místnosti byly vydlážděny kvalitní kamennou dlažbou a menší byla zaklenuta valenou klenbou, jejíž pozůstatky jsou dodnes patrné. V severovýchodním rohu této menší místnosti (předsíně) byl patrný opálený líc opukové zdi, který dokládá přítomnost otopného zařízení sousedícího s výklenkem a lavicí. To lázeň vytápělo, což dokládá i nalezený průduch mezi oběma místnostmi, kterým bylo do vedlejší místnosti přiváděno teplo. Do této předsíně vedl od západu původní vchod ze dvora synagogy přes dvanáct schodů. V severní a větší prostoře byla v jihozápadním rohu odkryta do podlahy zapuštěná vodní nádrž o rozměrech 1,2 x 2,3 metru dosahující hloubky až téměř 1 metr. Do nádrže se sestupovalo po čtyřech dřevěných schodech.
Unikátní nález z první třetiny 16. století představuje nejstarší objekt tohoto druhu v Čechách. Po jeho odkrytí byl následně v sedmdesátých letech 20. století doplněn o chybějící části kleneb i dláždění a zpřístupněn novým točitým schodištěm. O existenci dalších veřejných rituálních lázní v pražském Židovském městě nás informují písemné prameny, díky nimž známe alespoň přibližnou polohu dalších dvou (Židovská – Široká ulice a dnes zaniklá ulice Goldřichova), které jsou však nepochybně mladšího data. Památka v Pinkasově synagoze je dnes přístupná veřejnosti a komentované prohlídky se konají každý den odpoledne (13.00) s výjimkou sobot a židovských svátků.
Mikve je nezbytnou a důležitou součástí každé židovské obce. Název pochází z hebrejštiny, v níž doslova znamená „sebrání“ či „shromáždění“ vody a původně označoval vlastní nádrž, později bylo toto označení rozšířeno na celou lázeň. Nádrž s přírodní vodou měla umožnit úplné ponoření a sloužila k očištění osob či předmětů za podmínky přítomnosti stále proudící vody naplňující bazén bez zásahu lidské ruky. Dnes lázeň slouží např. k očistě žen po menstruaci či porodu, muži ji navštěvují v období vysokých svátků (Roš ha‑šana a Jom kipur; židovský Nový rok a Den smíření). Ponoření v nádrži rovněž doprovází konverzi k judaismu či jsou takto košerovány nádoby vyrobené v nežidovském prostředí a používané v židovské kuchyni.
Mgr. Vojtěch Kašpar, Archaia Praha z.ú.
Zadejte Vaši emailovou adresu a zajistěte si tak aktuality z České republiky.
© 2026 Pražský přehled
Publikování či další šíření obsahu www stránek prazskyprehled.cz bez vědomí redakce není slušné a odporuje autorskému zákonu.
Často jsou tu zveřejněny také materiály třetích stran, kde jejich další šíření je možné pouze se souhlasem redakce KAM po Česku. Děkujeme za pochopení.